Grasse (06130)
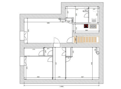
Pour un atelier ou un entrepôt local en sous-sol , avec un salle de bain et un espace cuisine, possibilité de stationnement minute juste devant l'immeuble. à 1 minute de la rue d'antibes. accessible par les escaliers. copropriété de 8 lots...
Vente d'un local industriel, parfait pour vos projets professionnels. - à vendre : local industriel nous vous proposons un local industriel idéalement situé, offrant un espace fonctionnel et adapté à divers types d'activités professionnelles. ce...
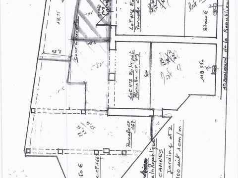
Cannes hyper centre dans axe passant & commerçant emplacement no1 local commercial de 183m2 bail 3/6/9 tous commerces sauf nuisances avec 18 mðtres linèaires de vitrine sud + de 3,50 mðtres de hauteur de plafond mandat 1242 riviera immo 9...
à vendre – local commercial polyvalent de 200 m² – cannes centre situé de plain-pied dans un quartier très calme du centre de cannes, ce local commercial entièrement rénové offre de multiples possibilités d'exploitation : atelier, garage,...
Nos partenaires locaux
Création d'une alerte