- Annonces immobilières
- Vente appartement
- Bretagne
- Ille-et-Vilaine (35)
Studio à vendre en Ille-et-vilaine (35) - page 3
Appartement 32 m2 Rennes (35)
Achat appartement. Appartement. special investisseur : a découvrir rapidement, situé place des lices ce studio au premier étage offrant une surface de 31 m² est vendu meublé avec locataire en place pour un loyer actuel de 560€ + 20€ de charges. pack gestion pour ce...
57 annonces
24/03/2026
Appartement 18 m2 Rennes (35)
Achat appartement. Studio beaulieu - 18 m² - loué. exclusivité cogir immobilier - quartier faculté de beaulieu, studio de près de 18 m² dans immeuble de 1994 sécurisé, parfait état intérieur, salon avec kitchenette équipée exposée ouest, parking couvert, quartier...
54 annonces
24/03/2026
Appartement 22 m2 Rennes (35)
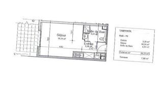
Vente appartement. Appartement. spécial investisseur – studio idéalement situé à rennes sud-gare découvrez ce charmant studio de 22,41 m², situé au 1er étage, dans le quartier recherché de sud-gare à rennes. ce bien représente une excellente opportunité...
57 annonces
23/03/2026
Appartement 27 m2 Saint-Malo (35)
Appartement à vendre. Saint malo studio - 27 m2 - loué - bail commercial. nestenn saint servan, vous propose à l'entrée de saint-malo dans la résidence cap west, ce studio situé au 1er étage, qui se compose d'une entrée avec placard, une kitchenette et un séjour...
38 annonces
23/03/2026
Appartement 24 m2 Dinard (35)
Achat appartement. Appartement dinard 1 pièce 24 m2. dinard (35800) - appartement de type studio. prix : 181.700 euros. honoraires : 3,83% ttc inclus à la charge de l'acquéreur, soit 175.000 euros hors honoraires. dans une résidence très prisée, ce studio d'une...
Yves Delentaigne
22/03/2026
Appartement 30 m2 Rennes (35)
Rennes, les longchamps, t1. rennes, quartier des longchamps, à proximité des facultés et de la station de métro atalante et au pieds des commerces, appartement t1 de 30 m2 dans immeuble récent comprenant une entrée, une pièce de vie d'environ 20...
54 annonces
21/03/2026
Appartement 17 m2 Cesson-Sévigné (35)
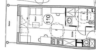
Spécial investisseur studio 17,90m². rennes / cesson-sevigne, spécial investisseur, idéalement situé 3801 boulevard des alliés, studio entièrement meublé et équipé d'environ 17,90 m² avec terrasse de 9,60 m², 6ème étage, excellent état, dpe...
35 annonces
21/03/2026
Appartement 26 m2 Saint-Malo (35)
Appartement à vendre saint-malo. spécial investisseur – forom® immobilier appartement t1 d'environ 26 m² avec une rentabilité de 7,52% brute, 5,51% nette ! le logement dispose d'un séjour, une kitchenette, une salle de bains avec un wc, un...
136 annonces
20/03/2026
Appartement 20 m2 Rennes (35)
Appartement. 35000 - rennes centre – appartement 1 piÈce – 1 chambre – 20,50 m² – investissement locatif lmnp – rÉsidence Étudiante – opportunitÉ À saisir efficity, l'agence qui estime votre bien en ligne, vous propose ce charmant appartement...
7 497 annonces
19/03/2026
Appartement 29 m2 Bruz (35)
Vente appartement. Résidence seniors. réalisez un investissement locatif sécurisé en résidence seniors sans les contraintes de gestion : le produit idéal pour vous constituer un patrimoine immobilier tout en bénéficiant d'une rentabilité sécurisée par des loyers...
1 300 annonces
18/03/2026
Appartement 18 m2 Rennes (35)
Spécial investisseur rennes beaulieu studio 18.94m². rennes / campus universitaire beaulieu, spécial investisseur, idéalement situé 153 boulevard de vitré, studio entièrement meublé et équipé de 18,94 m², rez-de-chaussée, dpe b, exposition est,...
35 annonces
17/03/2026
Appartement 18 m2 Cesson-Sévigné (35)
Achat appartement. Spécial investisseur studio 18,40 m². rennes / cesson-sevigne, spécial investisseur, idéalement situé 3801 boulevard des alliés, studio entièrement meublé et équipé d'environ 18,40 m², 4ème étage, excellent état, dpe c, exposition sud, dans la...
35 annonces
17/03/2026
Appartement 27 m2 Saint-Malo (35)
Achat appartement. Studio (26m2) - saint malo port des bas sablons. nestenn st servan vous propose ce studio situé sur le port des bas sablons, à côté de la plage. au deuxième étage d'une petite copropriété à faibles charges vous serez séduits par le charme de...
38 annonces
17/03/2026
Appartement 22 m2 Cesson-Sévigné (35)
Spécial investisseur studio 22m². rennes / cesson-sevigne, spécial investisseur, idéalement situé 3801 boulevard des alliés, studio entièrement meublé et équipé d'environ 22 m², excellent état, dpe b, dans la résidence services pour étudiants...
35 annonces
17/03/2026
Appartement 18 m2 Rennes (35)
Spécial investisseur studio meublé 18.22m². rennes / campus universitaire beaulieu, spécial investisseur, idéalement situé 153 boulevard de vitré, studio entièrement meublé et équipé de 18,22 m², 4ème étage, dpe b, exposition ouest, excellent...
35 annonces
17/03/2026
Appartement 18 m2 Rennes (35)
Spécial investisseur studio meublé 18.11m². rennes / campus universitaire beaulieu, spécial investisseur, idéalement situé 153 boulevard de vitré, studio entièrement meublé et équipé de 18,11 m², 4ème étage, dpe b, exposition ouest, excellent...
35 annonces
17/03/2026
Appartement 13 m2 Rennes (35)
Vente appartement. Appartement. ideal investisseurs - À vendre - studio avec mezzanine à rennes à proximité du thabor - situé dans un immeuble calme à proximité immédiate de la faculté de droit, ce charmant studio de caractère, orienté nord-est, se trouve au...
57 annonces
16/03/2026
Appartement 16 m2 Fougères (35)
Appartement studio dans bâtiment de caractère. idéal investisseur. exclusivitÉ – au cœur du centre-ville de fougères, découvrez ce studio de 16 m² carrez (environ 20 m² au sol) situé au 2ème étage d'un immeuble de caractère composé de 5 logements....
3 897 annonces
16/03/2026
Appartement 51 m2 Saint-Malo (35)
Achat appartement. Appartement 51m2 + parking - saint malo (bellevue). nestenn st servan vous propose en exclusivite amanda, dans le quartier de bellevue, ce grand studio en parfait état. sa surface permet d'en faire très facilement un t2 tout en gardant une belle...
38 annonces
15/03/2026
Appartement 29 m2 Rennes (35)
Appartement à vendre. Centre historique - appt type 1 bis - exclusivité. cogir immobilier- exclusivité - centre historique dans rue calme - appt de charme de près de 30 m² loi carrez (44 m² au sol) dans immeuble ancien de très bonne tenue situé au 3ème et dernier...
54 annonces
15/03/2026
Appartement 28 m2 Bruz (35)
Vente appartement. Studio. 35170 – bruz - studio meublé 28 m² – lmnp ancien de 2010 – parking – quartier calme efficity vous propose ce studio meublé situé 18 rue charles coude à bruz, au sein d'une résidence existante, dans un environnement résidentiel...
7 497 annonces
13/03/2026
Appartement 28 m2 Bruz (35)
Vente appartement. Appartement. 35170 – bruz - studio meublé 28 m² – lmnp ancien – parking – quartier calme efficity vous propose ce studio meublé situé 18 rue charles coude à bruz, au sein d'une résidence existante, dans un environnement résidentiel recherché....
7 497 annonces
13/03/2026
Appartement 28 m2 Noyal-Châtillon-sur-Seiche (35)
Noyal chatillon sur seiche - appartement t1, de 28m², balcon et parking. noyal chatillon sur seiche - studio de 28m², vendu en lmnp - avec un positionnement lié à la mobilité des entreprises et de ses collaborateurs, un emplacement stratégique en...
Georges-henri Nomari
12/03/2026
Appartement 21 m2 Rennes (35)
Rendement, sécurité et simplicité - investissez dans une résidence étudiante!. situé au cœur de rennes (35000), ce studio meublé de 21 m² offre un investissement locatif idéal. À proximité du métro, des arrêts de bus et de l'université, il...
3 897 annonces
12/03/2026
Appartement 23 m2 Pont-Péan (35)
Appartement. 35131 - pont-pean - studio 23,30m² - rez-de-chausse - 2 places de parking - cabanon de jardin - petite copropriete - faibles charges efficity, l'agence leader qui estime votre bien en ligne, vous propose : le studio qui coche...
7 497 annonces
12/03/2026
Appartement 27 m2 Le Rheu (35)
Appartement à vendre. Special investisseur - studio situé dans une résidence cap west - le rheu (35). en exclusivitÉ – bsk immobilier vous propose cet investissement locatif sécurisé. venez découvrir cet appartement meublé de 28 m² en résidence de services situé sur...
Isabelle Cannecu
12/03/2026
Nicolas Lendormy
12/03/2026
Appartement 21 m2 Rennes (35)
St hélier, appartement rénové, balcon, calme et lumineux. situé au cœur du quartier recherché de saint-hélier, dans une petite rue calme, découvrez cet appartement rénové au sein d'une copropriété à taille humaine. rare sur le secteur, cet...
3 897 annonces
11/03/2026
Appartement 15 m2 Rennes (35)
Appartement rennes 1 pièce(s) 15.13 m2. a rennes, à proximité de la gare, découvrez ce studio de 15,13 m² loi carrez, situé au deuxième étage sans ascenseur d'une petite copropriété de 9 lots, dont 8 lots d'habitation. le bien se compose d'une...
Florence Eon
11/03/2026
Appartement 15 m2 Rennes (35)
Achat appartement. Appartement. 35000 rennes - rennes - emplacement ideal - studio loue meuble – fort rendement locatif efficity, l'agence qui estime votre bien en ligne, vous propose ce studio, dans une petite copropriété, calme et lumineux, situé à proximité du...
7 497 annonces
10/03/2026