Achat de maisons Ploërmel - page 4
Maison 57 m2 Ploërmel (56)
Ploërmel : maison de 3 pièces (57 m²) à vendre idÉalement situÉe - maison 3 piÈces neuve en vente à 46 km de la côte atlantique, idéalement située dans ploërmel (56800), votre agence maisons de l'avenir vannes est ravie de vous présenter cette...
208 annonces
02/04/2026
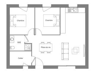
Maison 55 m2 Ploërmel (56)
Vente maison. maison f3 (55 m²) à vendre à ploërmel idÉalement situÉe - maison 3 piÈces neuve en vente à 46 km de l'océan atlantique, ayez le coup de coeur pour cette maison de 3 pièces de plain-pied de 55 m² idéalement située dans ploërmel...
208 annonces
02/04/2026
Maison 85 m2 Ploërmel (56)
Vente maison. vente d'une maison t3 (85 m²) à ploërmel idÉalement situÉe - maison 3 piÈces neuve À 46 km de la côte atlantique, en vente idéalement située dans ploërmel (56800), nous vous proposons cette maison de 3 pièces de plain-pied de 85 m²....
208 annonces
02/04/2026
91 - 91 sur 91 annonces
Activez une alerte mail pour recevoir automatiquement les nouvelles annonces :
Achat de maisons Ploërmel