- Annonces immobilières
- Vente
- Appartement
- T2
- Provence-Alpes-Côte d'Azur
- Alpes-Maritimes (06)
- Le Cannet
Vente Appartement T2 Le Cannet (06110) - page 2
Appartement 38 m2 Le Cannet (06)
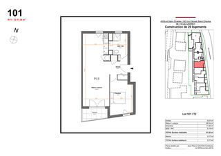
Vente appartement 2 pièce(s). nouvelle exclusivitÉ - le cannet – square carnot dans une résidence de bon standing, très joli 2 pièces en étage élevé, au calme et à proximité immédiate des commodités. un appartement lumineux et chaleureux où l'on...
391 annonces
28/03/2026
Appartement 42 m2 Le Cannet (06)
Appartement à vendre 1 chambre. Cannet : opportunité investisseur - rentabilité assurée. century 21 azurim vous présente une opportunité d'investissement attractive au cannet : un appartement t2 loué actuellement jusqu'en mars 2028, loyer actuel 650 euros cc mensuel de 42,82m²...
50 annonces
28/03/2026
Appartement 49 m2 Le Cannet (06)
Vente d'un appartement t2 (49 m²) à le cannet, lumineux avec balcon et orientation sud. - À vendre : charmant appartement de deux pièces au cannet, dans un quartier paisible et agréable. cet appartement est idéal pour un couple ou une personne...
38 annonces
27/03/2026
Appartement 55 m2 Le Cannet (06)
Appartement à vendre 1 chambre. 2 piÈces 55m2 - vue mer & terrasse 37m2 - rÉsidence monte cristo. le cannet - rare sur le marché situé dans le secteur prisé du mont joli, au sein de la prestigieuse résidence monte cristo, venez découvrir ce spacieux 2 pièces de 55,51 m2 loi...
26 annonces
26/03/2026
Appartement 51 m2 Le Cannet (06)
Achat appartement 1 chambre. Appartement le cannet rocheville / grand 2 pièce(s) neuf de 51 m2. dans un immeuble urbain de 2 étages seulement , , ce grand appartement 2 pièces de 51 m2 tout neuf , a un grand espace de vie ( séjour/ cuisine ouverte ) de 28 m2 . et une...
1 363 annonces
24/03/2026
Appartement 34 m2 Le Cannet (06)
Appartement. sous offre.. 06110 - le cannet vieux cannet - 2 pieces -34,33m2 - 1 chambre + 1 bureau - lumineux - ideal premier achat exclusivite sylvie montefiori experte du secteur, vous propose ce charmant 2 pièces à seulement 20 mètres de...
7 500 annonces
24/03/2026
Appartement 64 m2 Le Cannet (06)
Vente appartement 1 chambre. Cannes / le cannet – t2 d'exception en rÉsidence de standing avec jardin privatif, piscine & box – À 10 min des plages. À la frontière immédiate de cannes, au cœur d'un environnement résidentiel prisé, découvrez ce superbe 2 pièces de 64,50 m² rez...
Pascal Cavignaux
21/03/2026
Appartement 58 m2 Le Cannet (06)
Le cannet / cannes – appartement 58,5 m² À fort potentiel – grande cave – garage possible. situé au cannet, derrière le square carnot, au sein d'une résidence sécurisée, à proximité immédiate de cannes, découvrez cet appartement t2 de 58,5 m²...
Ousmane Dawood Sall
20/03/2026
Appartement 72 m2 Le Cannet (06)
Élégance et modernité au cœur du quartier mairie.. situé dans le secteur prisé de la mairie du cannet, quartier sainte-catherine, ce magnifique 2 pièces de 72m² entièrement rénové conjugue charme, volumes et prestations contemporaines. dès...
Jonathan Cassis
19/03/2026
Appartement 53 m2 Le Cannet (06)
Le cannet secteur paul doumer grand 2 pièces avec terrasse. laforêt le cannet vous propose ce charmant appartement 2 pièces de 52,86 m², bénéficiant d'une agréable terrasse exposée sud-est. idéalement situé dans le secteur de paul doumer, à...
20 annonces
19/03/2026
Appartement 36 m2 Le Cannet (06)
Achat appartement 1 chambre. Le cannet - 2 pièces. dans un immeuble de bon standing avec un accès direct à l'autoroute, nous vous proposons un 2 pièces vendu loué (bail meublé) jusqu'à juillet 2027. 900euros par mois charges comprises. une cave complète ce bien....
50 annonces
19/03/2026
Appartement 40 m2 Le Cannet (06)
Le clos d'eden - le cannet. situé dans la charmante ville du cannet (06 110), ce bel appartement offre un cadre de vie paisible tout en bénéficiant de la proximité immédiate des commerces, transports, et autres commodités. niché au sein de la...
Stéphanie Speciale
18/03/2026
Appartement 30 m2 Le Cannet (06)
Charmant 2 pièces climatisé au cannet (06110). situé dans la charmante ville du cannet, cet appartement de 30 m² offre un cadre de vie paisible et pratique, à proximité immédiate des commerces, des transports en commun et de toutes les commodités....
Stéphanie Speciale
17/03/2026
Appartement 46 m2 Le Cannet (06)
Achat appartement 1 chambre. F2 + garage + cave. idéalement situé au calme et à proximité de toutes commodités, dans résidence sécurisée et gardiennée, 2 pièces traversant d'une surface habitable de 45.82 m² composé d'une entrée, d'un cuisine indépendante, d'un séjour sur...
50 annonces
17/03/2026
Appartement 45 m2 Le Cannet (06)
Achat appartement 1 chambre. Appartement le cannet 2 pièce(s) 45 m2 dernier etage. dans un petit immeuble et au dernier niveau , cet appartement 2 pièces sera ensoleillé car au sud. important : un grand espace de vie avec cuisine ouverte de 24 m2 et un chambre de 12 m2 ! a...
1 363 annonces
16/03/2026
Appartement 40 m2 Le Cannet (06)
Vente appartement 1 chambre. Le cannet limite cannes t2 49 m2 dans rÉsidence bourgeoise 2 balcons meublÉ cave parking. baisse de prix ! le cannet limite cannes, proche centre-ville et commerces. joli t2 de 49 m2 au sol, traversant sud-est, situÉ dans une rÉsidence...
318 annonces
16/03/2026
Appartement 47 m2 Le Cannet (06)
Le cannet - 2 pièces. la palestre – dans une copropriété sécurisée avec piscine, lumineux t2 traversant composé comme suit: entrée, séjour avec un accès sur une terrasse de 11 m² en exposition sud-ouest, cuisine équipée avec balcon en nord-est....
50 annonces
16/03/2026
Appartement 57 m2 Le Cannet (06)
Vente appartement 1 chambre. 2 piÈces 57 m² terrasse plein sud rÉsidence de standing avec piscine et tennis. exclusivité le cannet 06110 dans un cadre privilégié et verdoyant, au sein d'une résidence de standing recherchée avec piscine et tennis, découvrez ce spacieux 2...
Bruno Diederichs
14/03/2026
Appartement 59 m2 Le Cannet (06)
Achat appartement 1 chambre. À vendre : grand appartement t2 (59 m²) en très bon état au cannet, proche des commerces et commodités. - À vendre : grand appartement t2 situé dans la charmante ville du cannet, dans le département des alpes-maritimes (06110). ce bien immobilier...
38 annonces
13/03/2026
Appartement 36 m2 Le Cannet (06)
Appartement à vendre 1 chambre. À vendre : appartement t2 (36 m²) au cannet, idéalement situé dans le quartier cannes - carnot, avec balcon et ascenseur. - cannes - carnot - À vendre : appartement t2 situé dans le quartier prisé du cannet secteur carnot. ce bien, construit en...
41 annonces
12/03/2026
Appartement 48 m2 Le Cannet (06)
2 p 48 m2 vieux cannet. 2 pièces de 48.03 m² dans le secteur prisé du vieux cannet, proche de la célèbre rue saint sauveur et de ses commerces. il se compose d'une entrée, d'un charmant séjour avec ses poutres apparentes avec cuisine ouverte,...
63 annonces
12/03/2026
Appartement 50 m2 Le Cannet (06)
Achat appartement 1 chambre. Le cannet centre , beau 2 pièce(s de 50 m2 avec terrrasse. l'agence laforet le cannet vous propose ce superbe 2 pièces d'une superficie de 50 m2 avec sa terrasse exposée au sud. l'appartement est situé au centre du cannet à proximité des...
20 annonces
11/03/2026
Appartement 34 m2 Le Cannet (06)
Achat appartement 1 chambre. Appartement le cannet 2 pièce(s) 34,30 m2. l'agence laforêt le cannet à le plaisir de vous présenter ce charmant deux pièces, situé dans le quartier historique du cannet, rue saint-sauveur, au troisième étage. au sein d'une petite copropriété,...
20 annonces
11/03/2026
Appartement 47 m2 Le Cannet (06)
Vente d'un appartement t2 (47 m²) lumineux au 5ème étage avec vue mer au cannet mairie, idéalement situé. - le cannet - mairie - À vendre : appartement t2 idéalement situé au cannet, dans le quartier prisé du cannet mairie. ce bien d'une...
38 annonces
10/03/2026
Appartement 45 m2 Le Cannet (06)
Achat appartement 1 chambre. Appartement le cannet 2 pièce(s) 45 m2 dernier etage. dans un petit immeuble et au dernier niveau , cet appartement 2 pièces sera ensoleillé car au sud. important : un grand espace de vie avec cuisine ouverte de 24 m2 et un chambre de 12 m2 ! a...
1 363 annonces
08/03/2026
Appartement 45 m2 Le Cannet (06)
Vente appartement 1 chambre. Appartement le cannet 2 pièce(s) 45 m2 dernier etage. dans un petit immeuble et au dernier niveau , cet appartement 2 pièces sera ensoleillé car au sud. important : un grand espace de vie avec cuisine ouverte de 24 m2 et un chambre de 12 m2 ! a...
1 363 annonces
08/03/2026
31 - 56 sur 56 annonces