Paris (75015)
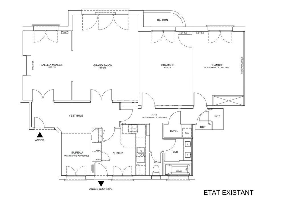
Appartement élégant, rénové, rare sur le secteur - À proximité du métro Félix Faure, au sein d'un immeuble de bon standing avec gardien, cet appartement traversant de 93 m2 a fait l'objet...
Appartement bourgeois disposant de 4 chambres - Immeuble pierre de taille de 1895 avec gardienne, idéalement situé à proximité des commerces de la rue de Vaugirard et ceux de la rue...
T 3 - 87,5 m² (67,16 Carrez) - TERRASSE/BALCON - CAVE -... - Situé dans le sud du 15ème arrondissement de Paris, Proche porte de Versailles, cet appartement bénéficie d'un emplacement de choix, alliant...
Grand 3 pièces de 94 m² ? Quartier résidentiel et calme ?... - Alexandrine COLLARD vous propose ce spacieux appartement de 93,55m² Carrez, situé au premier étage d'un immeuble récent (1991), parfaitement...
Paris 15e – Boucicaut 4 pièces – 80 m² - Paris 15e – Quartier Boucicaut / Convention Dans un immeuble ancien de 1914, appartement de 4 pièces situé au 6e étage avec ascenseur,...
Appartement - PARIS 15è PONT MIRABEAU / QUAIS DE SEINE – 5 PIÈCES – 2/3 CHAMBRES – 112 M2 - IMMEUBLE ART DÉCO – LUMINEUXEfficity, l'agence...
Appartement - 75015 – PARIS – TOUR AVANT-SEINE – VUE PANORAMIQUE – APPARTEMENT de 63,71 m² (63,08 m² en Carrez) au PLAN OPTIMISÉ sans perte de place,...
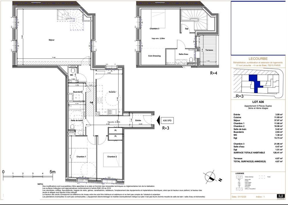
Appartement T5 en duplex - Grand appartement en Duplex de. 126,41m2, qui se compose au 1er : d'une cuisine séparée de 11,69m2, d'un séjour de plus de 37m2 de deux...
Boucicaut - rue de la Convention - 5 min à pied métro Boucicaut - rue de la Convention- DPE D - L'agence Safti vous présente cet appartement traversant de 86 m², situé au 4...
VENTE d'un appartement T5 (73 m²) à Paris 15e Arrondissement. - À VENDRE : Appartement T5 d'exception dans le 15e Arrondissement de Paris...
MAGNIFIQUE APPARTEMENT EN DUPLEX AVEC 3 TERRASSES DE 57M2 VUE TOUR EIFFEL - EXCLUSIVITE - PARIS (75015) - CONVENTION - Appartement...
Appartement 4 pièce(s) 88,69 m2 dans un bel immeuble... - Nicole Rey vous propose, à deux pas du métro convention et des bus, dans un immeuble haussmannien bien entretenu, sécurisé et avec gardien,...
Appartement - 75015 - PARIS - GRENELLE - 4 PIECES - 96 M² - 2 ou 3 CHAMBRES - VUE MAJESTUEUSE sur la TOUR EIFFEL - AGREABLE ET LUMINEUX - Métro 6 ou 10...
Appartement 4 pièces avec balcon - A VENDRE,Au pied du pont Mirabeau, du parc André Citröen et à deux pas du centre Beaugrenelle, venez découvrir cet appartement 4...
BEL APPARTEMENT DE 70M² - Situé dans le prestigieux 15e arrondissement de Paris, cet appartement bénéficie d'un emplacement privilégié rue d'Alleray, à proximité de...
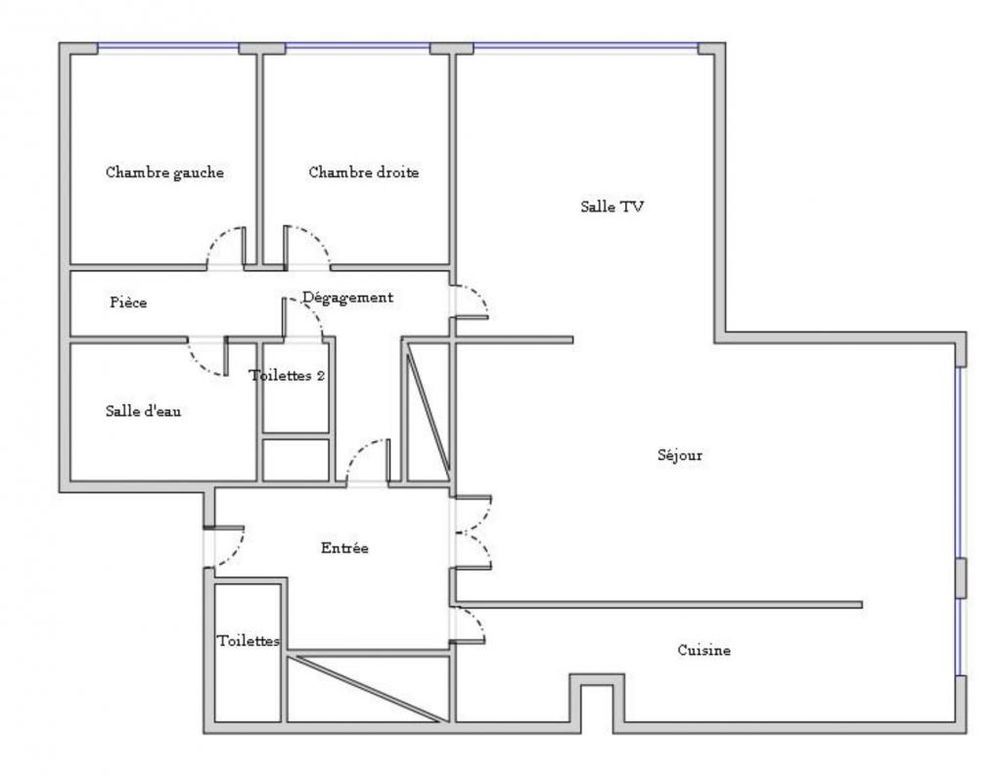
Appartement 2 pièces - PARIS 75015 : Au pied du champs de Mars, un appartement de deux pièces au deuxième étage avec ascenseur. Il est composé d'une entrée, d'une...
Appartement - Efficity l'agence immobilière qui estime votre bien en ligne et Joëlle Perrody vous proposent dans une des plus belles tours du Front de...
Appartement familial, rénové 102m2, Quartier Zola - Ce magnifique 4 pièces est un appartement élégant de 102m2, situé au 4ème étage d'un immeuble bourgeois dans le quartier prisé de...
Appartement à rénover - Paris XVème - APPARTEMENT CALME ET LUMINEUX AVEC BALCON ET 2 PARKINGS - Efficity, l'agence spécialisée dans l'estimation de biens immobiliers...
Quartier GRENELLE , 3 pièces. - Disponible immédiatement Dans un immeuble ancien , rue très calme , nous vous proposons un appartement de trois pièces bénéficiant du charme de l'ancien parquet...
À 2 pas des métros Charles Michels et JavelRARE : Magnifique 2 pièces de 55 m² au 8 et dernier étage avec ascenseur, dans une...
61 - 81 sur 81 annonces
Création d'une alerte