Languedoc-Roussillon
Vente Appartement 4 pièces - iad France - Penelope Stoker vous propose: COUP DE COEUR - Appartement d'exception avec terrace en attique et vue panoramique...
Vente Appartement 4 pièces - iad France - Hakima Noel () vous propose : « Vivez l'exceptionnel avec une villa sur toit »Aux portes de la vibrante ville de Béziers...
Appartement - En première ligne face à la Méditerranée, ce bel appartement en duplex offre une vue imprenable sur la mer, le port et le littoral. Situé...
Duplex - Au cœur de Pézenas, à proximité directe de toutes commodités (commerces, écoles, restaurants, transports et activités), duplex sans vis-à-vis...
Appartement - NÎMES - À DEUX PAS DU COEUR DE VILLE - APPARTEMENT HAUSSMANNIEN - 283 m² - T7 - GARAGE - ASCENSEUR -PRESTATIONS DE...
Appartement - Au cœur du centre historique de Nîmes, à quelques pas des Arènes, découvrez ce magnifique duplex T5 de 178 m², niché dans une résidence...
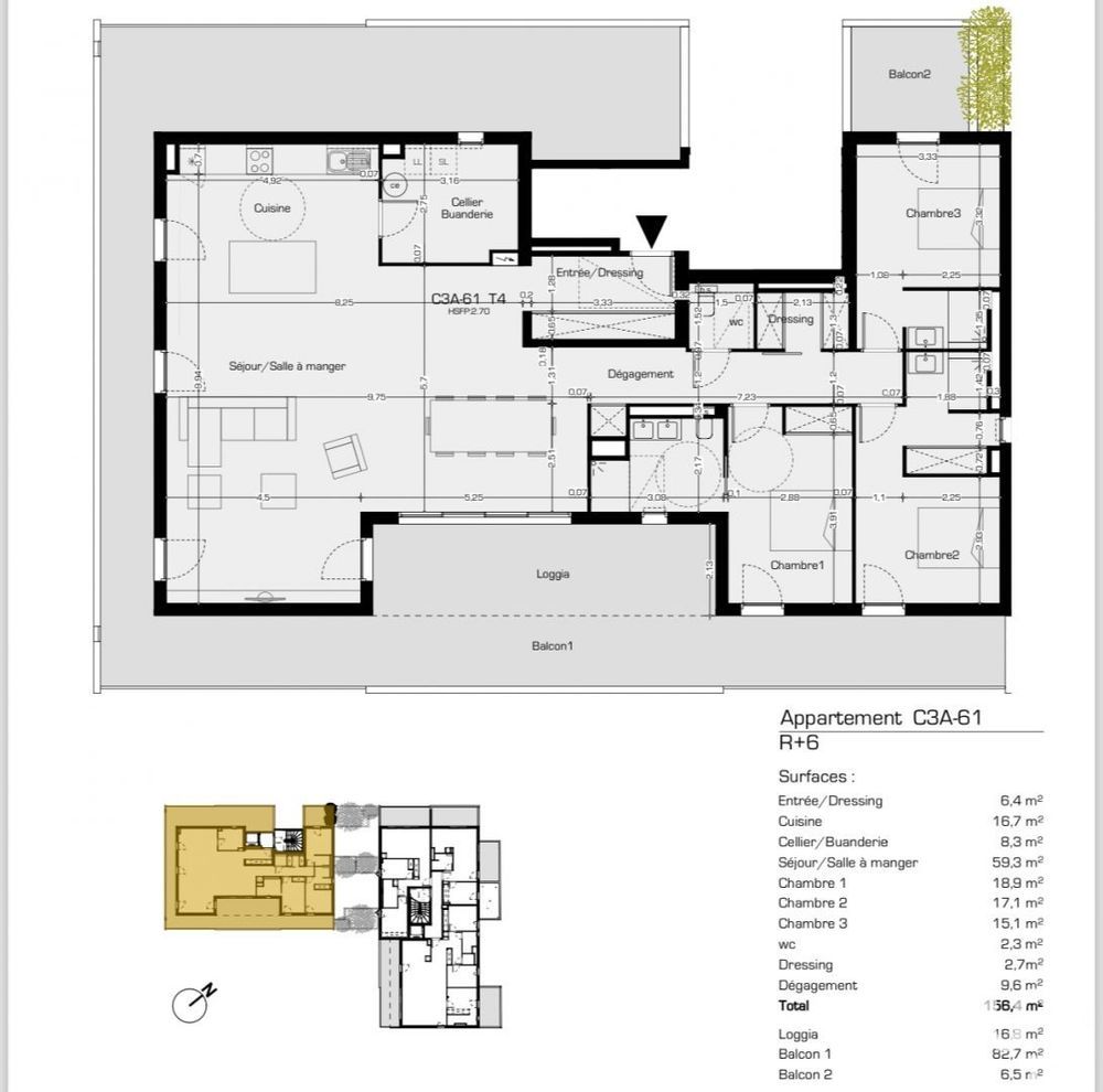
6 Pièces - Fiche Id-PAR179440 : Découvrez ce magnifique duplex de 224 m², situé au dernier étage d'une résidence haut de gamme. Ce bien d'exception...
Appartement - Situé au cœur du village historique de Baillargues, découvrez une résidence d'exception offrant un cadre de vie privilégié, à proximité...
vente appartement 3 Pièce(s) - Au centre-ville - Appartement P2/P3 de 89 m ² plus deux terrasses contigus de 12 m ² et une loggia vitrée de 6 m ² - En étage très...
Appartement à vendre 4 pièces CARNON PLAGE (34) - EXCLUSIVITE dans un cadre rare et préservé, découvrez cet appartement d'exception entièrement rénové de 134 m², offrant un accès direct à la...
CANET SUD - OPPORTUNITE TRES RARE SUR LE MARCHE - Sur la promenade piétonne Charles Trenet, découvrez cet appartement de 87 m² au 6ème et...
appartement - Appartement de standing T5 à Nîmes au début de l'avenue Pompidou, un bien rare qui ne manquera pas de vous séduire ! Il occupe tout...
vente appartement 4 Pièce(s) - Au Ponant - Appartement P4 de 100 m ² plus une terrasse de 20 m ² - Au 3ème et dernier étage avec ascenseur - Comprenant : entrée...
Dpt Pyrénées Orientales (66), à vendre COLLIOURE... - Située sur les hauteurs de COLLIOURE , à 10 mn à pieds du centre ville, de ses commerces et de la plage centrale.Vous découvrirez...
Dpt Pyrénées Orientales (66), à vendre COLLIOURE... - Située sur les hauteurs de COLLIOURE , à 10 mn à pieds du centre ville, et de ses commerces et de la plage centrale.Vous découvrirez...
Vente appartement de standing 9 pièces Perpignan centre 66000 - A vendre appartement de standing climatisé, 9 pièces Perpignan Centre 66000 Spacieux et lumineux, cet appartement de 9 pièces offre des...
3 Pièces - Fiche Id-PAR179669 : Exclusivité centre ville coté Point zéro, Agréable appartement de type 3 d'une surface de 73 m² en étage avec ascenseur...
• COUP DE COEUR - LATTES PORT ARIANE- RARE - VUE... - C'est au rooftop d'une copropriété très recherchée, au 8ème et dernier étage, que vous allez pouvoir vous installer dans votre nouveau cocon...
MAGNIFIQUE APPARTEMENT DE DERNIER ETAGE DANS UNE RESIDENCE... - Découvrez cet appartement lumineux de 112 m2 situé dans une résidence luxueuse, au dernier étage pour plus d'intimité et de...
Narbonne - APPARTEMENT NEUF DE PRESTIGE - Dans un cadre exceptionnel, proche du centre ville, découvrez ce luxueux appartement de 140,68 m2, situé dans une résidence moderne et...
Dépt Héraul(34) A vendre Sur Carnon appartement T3 Vue Mer... - Rare à la vente, au 3 ème et dernier étage d'une résidence sécurisée, découvrez cet appartement d'exception avec vue mer panoramique, d'une...
Dépt Hérault (34), à vendre MONTPELLIER Arceaux Appartement... - MONTPELLIER, Arceaux / Rue Marcel de Serres, dans une résidence de Standing venez découvrir cet appartement F6 d'environ 165m2 avec une...
Appartement Uzes 5 pièce(s) 192 m2 en rez-de-chaussée avec... - UZES : Plongez au coeur du patrimoine uzétien avec cet appartement en rez-de-chaussée de 192 m², situé dans l'un des plus majestueux hôtels...
MÈZE(34), À VENDRE T4 SURFACE 94 m2 , VUE ÉTANG DE THAU,... - Je vous invite à venir découvrir ce superbe appartement T4 de standing, offrant 94 m² de surface habitable.Situé au 1er étage...
Appartement de prestige 3 pièces - Terrasse de 44m² VUE MER... - LA GRANDE-MOTTE (34) Secteur COUCHANT – Appartement de 71m² avec 3 pièces (2 chambres), livré en juin 2025, dans une résidence sécurisée de...
MARINA 4 pièces vue large et dégagée sur le plan d'eau de... - Dans un environnement calme, proche des commerces et à proximité des plages, JOLIE MARINA en duplex de type P4 de 84 M2, lumineuse et bien...
Penthouse de 114 m2 à Aiguelongue/St Éloi - Penthouse de 114 m2 à Aiguelongue/St ÉloiT4 sur deux étages, baie vitrée cathédrale, avec 78 m2 de surface extérieure plein ciel....
3 Pièces - Fiche Id-PAR178409 : Au cœur du centre ville, ce superbe appartement de standing offre plus de 100 m² utile avec sa terrasse ensoleillée...
MONTPELLIER BEL APPARTEMENT T4 + BUREAU / TERRASSE / 2 PARKING - Montpellier situé au cœur du quartier de la Cité Créative, découvrez ce bel appartement T4 de 112 m2, au dernier étage (5? sur 6) d'un...
61 - 90 sur 113 annonces
Création d'une alerte