-
Annonces
- Immobilier
- Immobilier Neuf
- Construction maison
- Île-de-France
- Val-d'Oise (95)
- Marines (95640)
Maison neuve Marines (95640) - page 2
Maison 95 m2 Marines (95)
Maison individuelle 95,10 m² à marines. sur un terrain de 516m² à marines, découvrez votre future maison de 95,1m² proposant 4 chambres. beau projet terrain plus maison a marines. les établissements scolaires sont facilement accessibles....
1 027 annonces
30/03/2026
Maison 94 m2 Marines (95)
Maison individuelle 93,71 m² à marines. situé dans un quartier résidentiel calme et recherché de marines, ce terrain de 516m² est idéal pour concrétiser votre projet de construction. parmi nos 180 modèles de maison, nous avons sélectionné pour...
1 027 annonces
30/03/2026
Maison 95 m2 Marines (95)
Maison individuelle 95,10 m² à marines. opportunité rare à saisir sur un terrain de 516m² à marines, où il est possible de construire une maison de 95,1m² avec 4 chambres. beau projet terrain plus maison a marines. les établissements scolaires...
1 027 annonces
30/03/2026
Maison 95 m2 Marines (95)
Maison individuelle 95,10 m² à marines. votre projet de vie personnalisée à marines ! découvrez ce terrain à bâtir d'une surface de 516m² et imaginez la maison de vos rêves dans un cadre de vie dynamique et familial. pour cela, maisons pierre vous...
1 027 annonces
30/03/2026
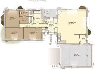
Maison 108 m2 Marines (95)
Maison individuelle 108,10 m² à marines. votre future maison sur un terrain de 516m² à marines comprend une maison de 108,1m² disposant de 3 chambres. beau projet terrain plus maison a marines. les établissements scolaires sont facilement...
1 027 annonces
30/03/2026
Maison 104 m2 Marines (95)
Maison individuelle 104,02 m² à marines. sur un terrain de 434m² à marines, découvrez votre future maison de 104,02m² proposant 4 chambres. opportunité à saisir ! situé dans un cadre idyllique dans la ville de marines à deux pas de cergy...
1 027 annonces
30/03/2026
Maison 90 m2 Marines (95)
Maison individuelle 90,28 m² à marines. situé dans un quartier résidentiel calme et recherché de marines, ce terrain de 540m² est idéal pour concrétiser votre projet de construction. parmi nos 180 modèles de maison, nous avons sélectionné pour...
123 annonces
28/03/2026
Maison 108 m2 Marines (95)
Maison individuelle 108,24 m² à marines. votre projet de vie personnalisée à marines ! découvrez ce terrain à bâtir d'une surface de 540m² et imaginez la maison de vos rêves dans un cadre de vie dynamique et familial. pour cela, maisons pierre...
123 annonces
28/03/2026
Maison 105 m2 Marines (95)
Maison de 6 pièces (105 m²) à vendre à marines paris à 55 min (transilien j, santeuil-le perchay) - idéalement située dans marines (95640), maison neuve 6 pièces à vendre avec 2 niveaux, une surface de 105 m² et de 516 m² de terrain. son...
2 083 annonces
26/03/2026
Maison 90 m2 Marines (95)
Maison de 5 pièces (90 m²) à vendre à marines paris à 55 min (transilien j, santeuil-le perchay) - À découvrir idéalement située dans marines (95640) : maison neuve 5 pièces à vendre. 2 niveaux, surface de 90 m² sur 516 m² de terrain. son...
2 083 annonces
26/03/2026
Maison 124 m2 Marines (95)
Maison de 7 pièces (124 m²) à vendre à marines paris à 55 min (transilien j, santeuil-le perchay) - À découvrir idéalement située dans marines (95640) : maison neuve 7 pièces en vente. 2 niveaux, surface de 124 m² et 516 m² de terrain. elle...
2 083 annonces
26/03/2026
Maison 85 m2 Marines (95)
Maison de 5 pièces (85 m²) à vendre à marines idÉalement situÉe - maison 5 piÈces neuve en vente : à proximité de la gare de santeuil-le perchay (paris à 55 min par le transilien j), les maisons extraco chambourcy vous propose, idéalement située...
435 annonces
23/03/2026
Maison 100 m2 Marines (95)
Vente d'une maison de 5 pièces (100 m²) à marines idÉalement situÉe - maison 5 piÈces neuve À vendre : à deux pas du transilien j (gare de santeuil-le perchay, 55 min de paris), nous sommes ravis de vous présenter cette maison de 5 pièces de 100...
435 annonces
23/03/2026
Maison 120 m2 Marines (95)
Maison f6 (120 m²) à vendre à marines idÉalement situÉe - maison 6 piÈces neuve en vente : proche du transilien j (gare de santeuil-le perchay, 55 min de paris), nous vous proposons, idéalement située dans marines (95640), cette maison de 6 pièces...
435 annonces
23/03/2026
Maison 90 m2 Marines (95)
Vente : maison f5 (90 m²) à marines paris à 55 min (transilien j, santeuil-le perchay) - À découvrir idéalement située dans marines (95640) : maison neuve 5 pièces en vente, 2 niveaux, 90 m² de surface et 516 m² de terrain. elle est composée de...
1 542 annonces
23/03/2026
Maison 160 m2 Marines (95)
Vente : maison f8 (160 m²) à marines paris à 55 min (transilien j, santeuil-le perchay) - idéalement située dans marines (95640), maison neuve à vendre de 8 pièces, 2 niveaux, 160 m² et 516 m² de terrain. elle compte cinq chambres, une cuisine et...
1 542 annonces
23/03/2026
Maison 90 m2 Marines (95)
Vente : maison t5 (90 m²) à marines paris à 55 min (transilien j, santeuil-le perchay) - maison neuve 5 pièces à vendre idéalement située dans marines (95640) avec 2 niveaux, une surface de 90 m² et de 516 m² de terrain. son intérieur est composé...
1 542 annonces
23/03/2026
Maison 160 m2 Marines (95)
Vente d'une maison f8 (160 m²) à marines paris à 55 min (transilien j, santeuil-le perchay) - maison neuve 8 pièces en vente idéalement située dans marines (95640) avec 2 niveaux, une surface de 160 m² sur un terrain de 516 m². elle est composée...
1 542 annonces
23/03/2026
Maison 120 m2 Marines (95)
Vente : maison t7 (120 m²) à marines paris à 55 min (transilien j, santeuil-le perchay) - À découvrir idéalement située dans marines (95640) : maison neuve 7 pièces à vendre, 2 niveaux, 120 m² de surface sur 516 m² de terrain. elle offre quatre...
1 542 annonces
23/03/2026
Maison 120 m2 Marines (95)
Vente : maison t7 (120 m²) à marines paris à 55 min (transilien j, santeuil-le perchay) - idéalement située dans marines (95640), maison neuve à vendre de 7 pièces, 2 niveaux, 120 m² sur 516 m² de terrain. son intérieur dispose de quatre...
1 542 annonces
23/03/2026
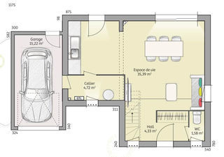
Maison 105 m2 Marines (95)
Marines : maison de 6 pièces (105 m²) en vente paris à 55 min (transilien j, santeuil-le perchay) - À marines (95640), maison neuve en vente de 6 pièces, 105 m² sur 250 m² de terrain. conçue de plain-pied, elle compte quatre chambres, une cuisine...
2 108 annonces
19/03/2026
Maison 160 m2 Marines (95)
Vente : maison de 7 pièces (160 m²) à marines paris à 55 min (transilien j, santeuil-le perchay) - À découvrir à marines (95640) : maison neuve 7 pièces à vendre, 2 niveaux, 160 m² sur 250 m² de terrain. son intérieur compte cinq chambres, une...
2 108 annonces
19/03/2026
Maison 100 m2 Marines (95)
Vente : maison t6 (100 m²) à marines paris à 55 min (transilien j, santeuil-le perchay) - maison neuve 6 pièces à vendre à marines (95640) avec 2 niveaux, une surface de 100 m² sur un terrain de 250 m². elle compte quatre chambres, une cuisine et...
2 108 annonces
19/03/2026
Maison 90 m2 Marines (95)
Vente : maison de 5 pièces (90 m²) à marines paris à 55 min (transilien j, santeuil-le perchay) - À découvrir à marines (95640) : maison neuve 5 pièces en vente, 2 niveaux, 90 m² sur 250 m² de terrain. elle offre trois chambres, une cuisine et...
2 108 annonces
19/03/2026
Maison 80 m2 Marines (95)
Construisez votre maison au coeur du vexin français, dans le charmant village de marines (95). sur un terrain de 516 m² avec une façade constructible de 13 ml, maisons france confort vous accompagne dans la réalisation d'un projet traditionnel,...
934 annonces
17/03/2026
Maison 115 m2 Marines (95)
Construisez votre maison au coeur du vexin français, dans le charmant village de marines (95). sur un terrain de 516 m² avec une façade constructible de 13 ml, maisons france confort vous accompagne dans la réalisation d'un projet traditionnel,...
934 annonces
17/03/2026
Maison 105 m2 Marines (95)
Construisez votre maison au coeur du vexin français, dans le charmant village de marines (95). sur un terrain de 516 m² avec une façade constructible de 13 ml, maisons france confort vous accompagne dans la réalisation d'un projet traditionnel,...
934 annonces
17/03/2026
Maison 71 m2 Marines (95)
Offrez vous l'opportunité de construire votre maison dans un cadre privilégié! situé à marines (95), charmante commune du vexin français, ce terrain de 516 m² avec une façade constructible de 13 m est idéal pour votre projet de vie. marines...
934 annonces
17/03/2026
Maison 98 m2 Marines (95)
Vente : maison de 5 pièces (98 m²) à marines paris à 55 min (transilien j, santeuil-le perchay) - À vendre, idéalement située dans marines (95640) : maison neuve 5 pièces de 98 m² et de 516 m² de terrain. son intérieur est composé de quatre...
2 083 annonces
10/03/2026
Maison 120 m2 Marines (95)
Vente : maison de 5 pièces (120 m²) à marines paris à 55 min (transilien j, santeuil-le perchay) - À découvrir idéalement située dans marines (95640) : maison neuve 5 pièces en vente. surface de 120 m² sur 516 m² de terrain. conçue de plain-pied,...
2 083 annonces
10/03/2026